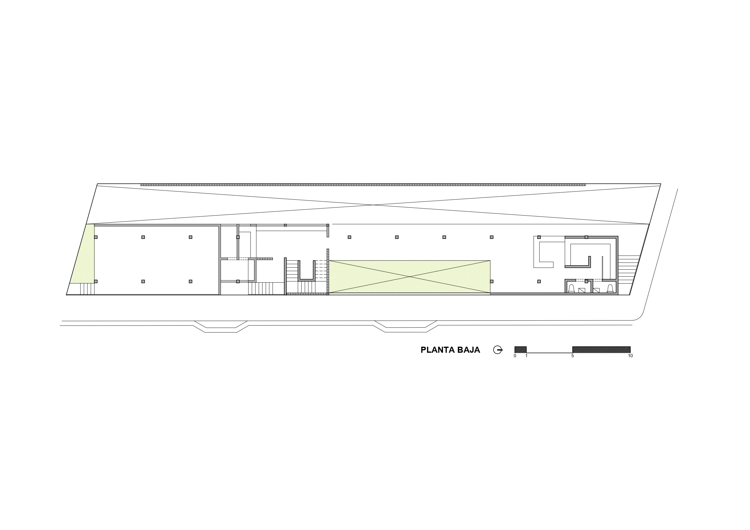
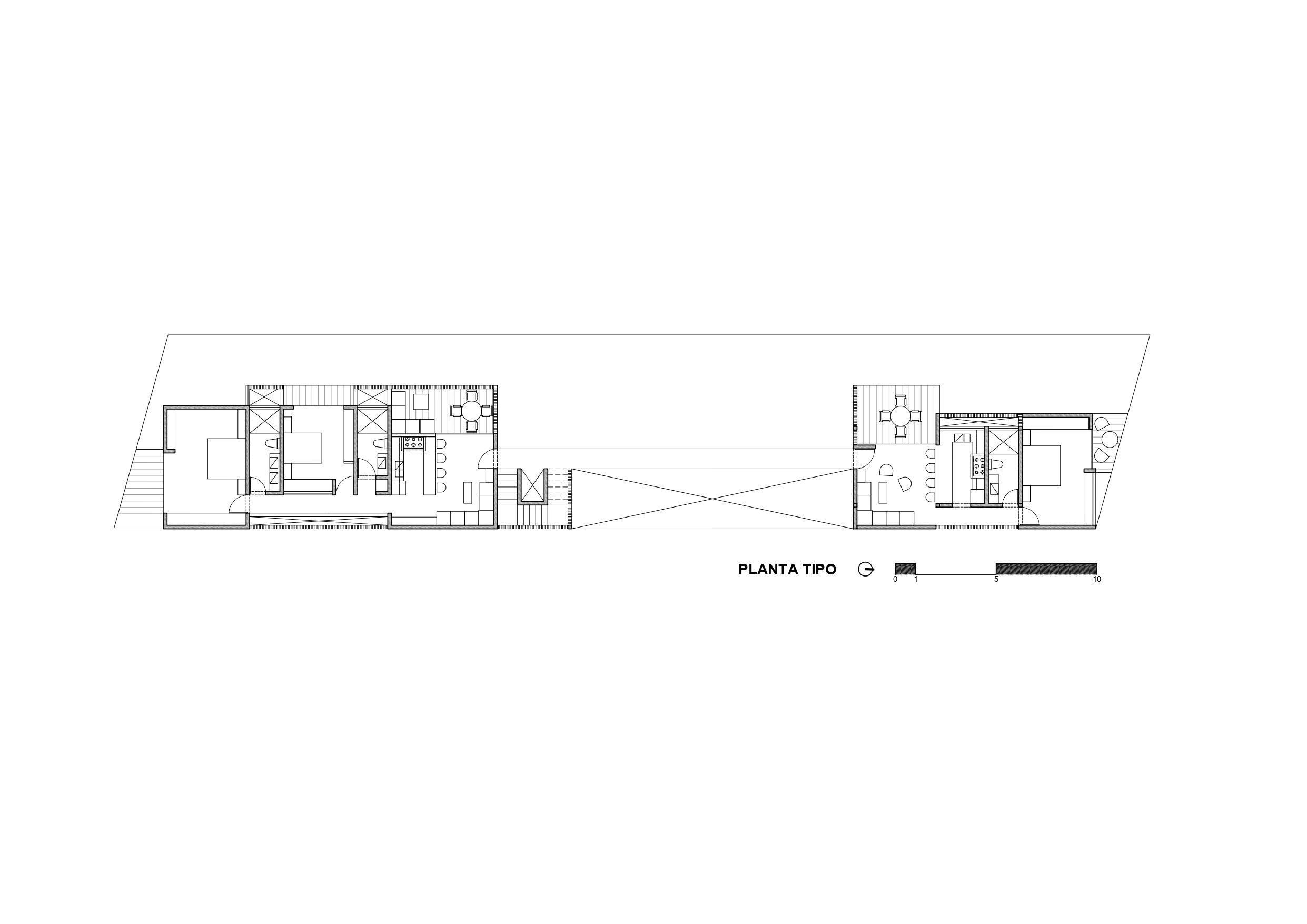
B_CRUZ DE HUANACAXTLE
-
Location
La Cruz de Huanacaxtle, Nayarit. -
Year(s)
2020 -
Project
Archt. Leon Leroy Zoeger -
Collaborators
Archt. Jorge Juan Palomar, Archt. Mónica Montufar, Archt. Alma Villalobos -
Surface
914m²

