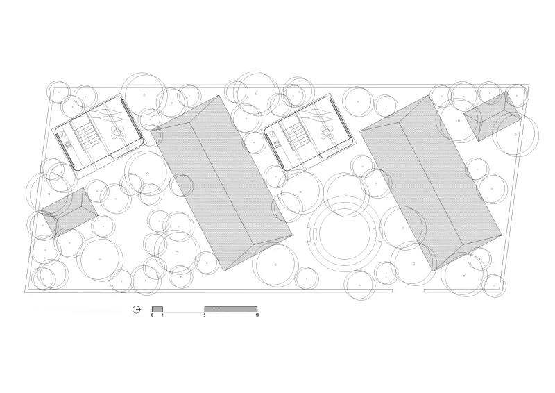
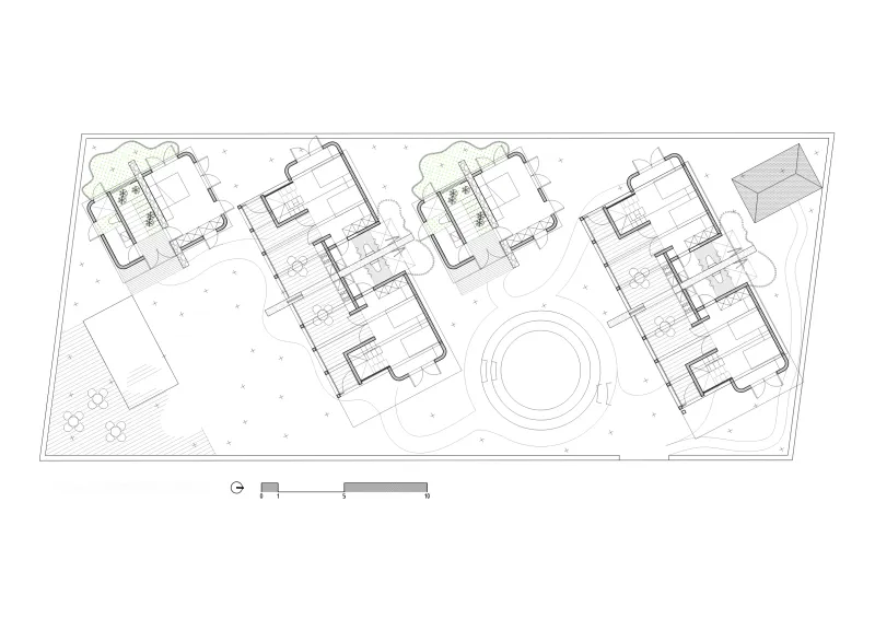
LUM-HA Hotel

LUM-HA Hotel

Tulum, QR, mx 2020 Project
LUM-HA Hotel
LUM-HA Hotel
LUM-HA Hotel
LUM-HA Hotel
LUM-HA Hotel
LUM-HA Hotel
LUM-HA Hotel
LUM-HA Hotel
LUM-HA Hotel
LUM-HA Hotel
LUM-HA Hotel
LUM-HA Hotel
LUM-HA Hotel
LUM-HA Hotel