Pinar House

Pinar House

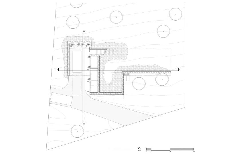
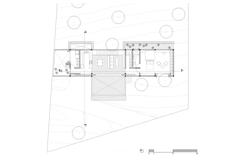
Arenal, Jal, MX 2019 Project
Pinar House
Pinar House
Pinar House
Pinar House
Pinar House
Pinar House
Pinar House
Pinar House
Pinar House
Pinar House