MENU close
LL Architecture
LL ArchitectureLL Architecture
  • es
  • fr
  • en
  • Inicio
  • Get in Touch

B_BUCERIAS

B1
B_3 – Foto
B_5—Foto
B_6—Foto
4 (1)
3
2 (1)
Render 1, Bucerías, Nay.
SECCION TRANSVERSAL_page-0001
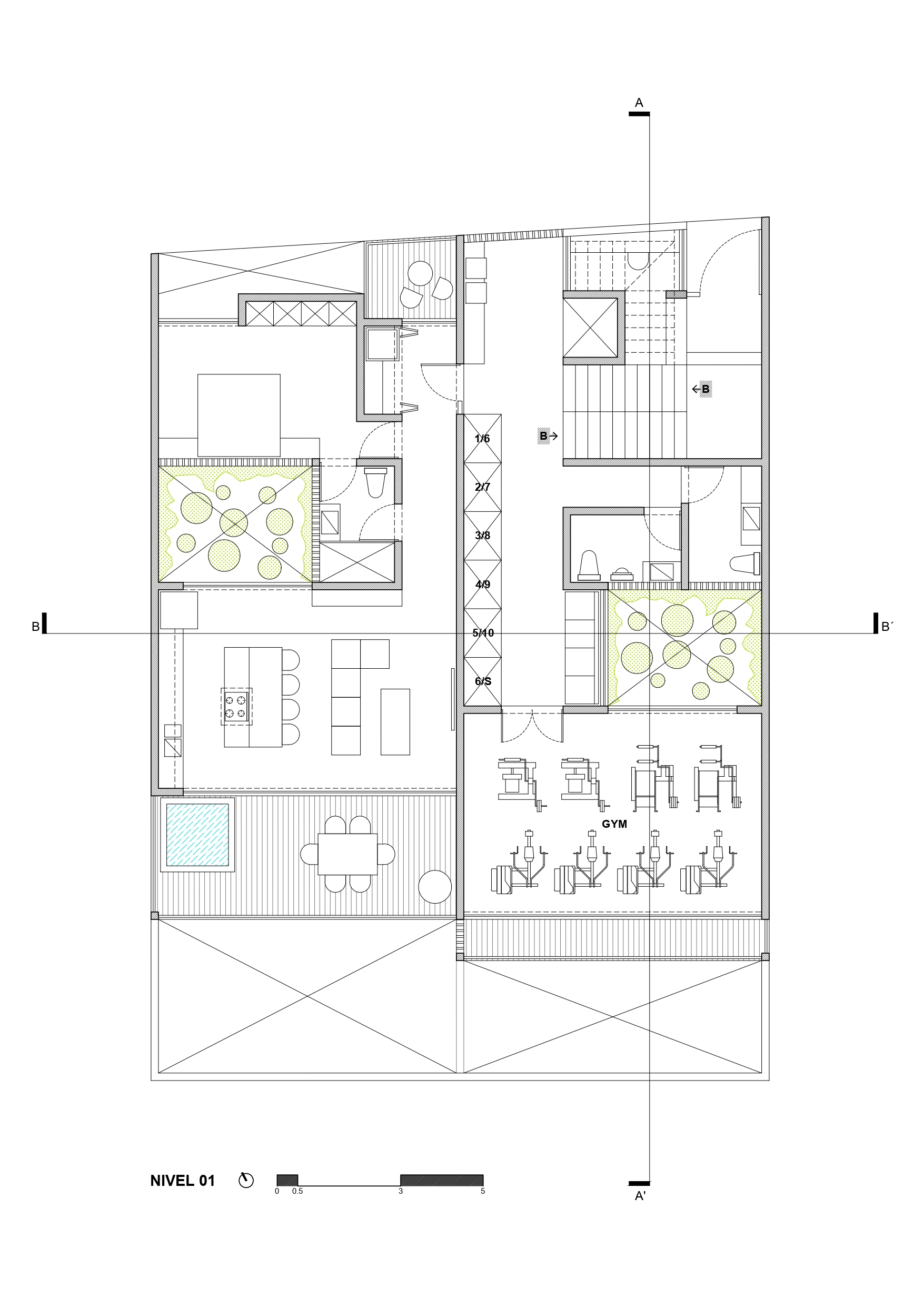
NIVEL 01_page-0001
NIVEL 02-06_page-0001
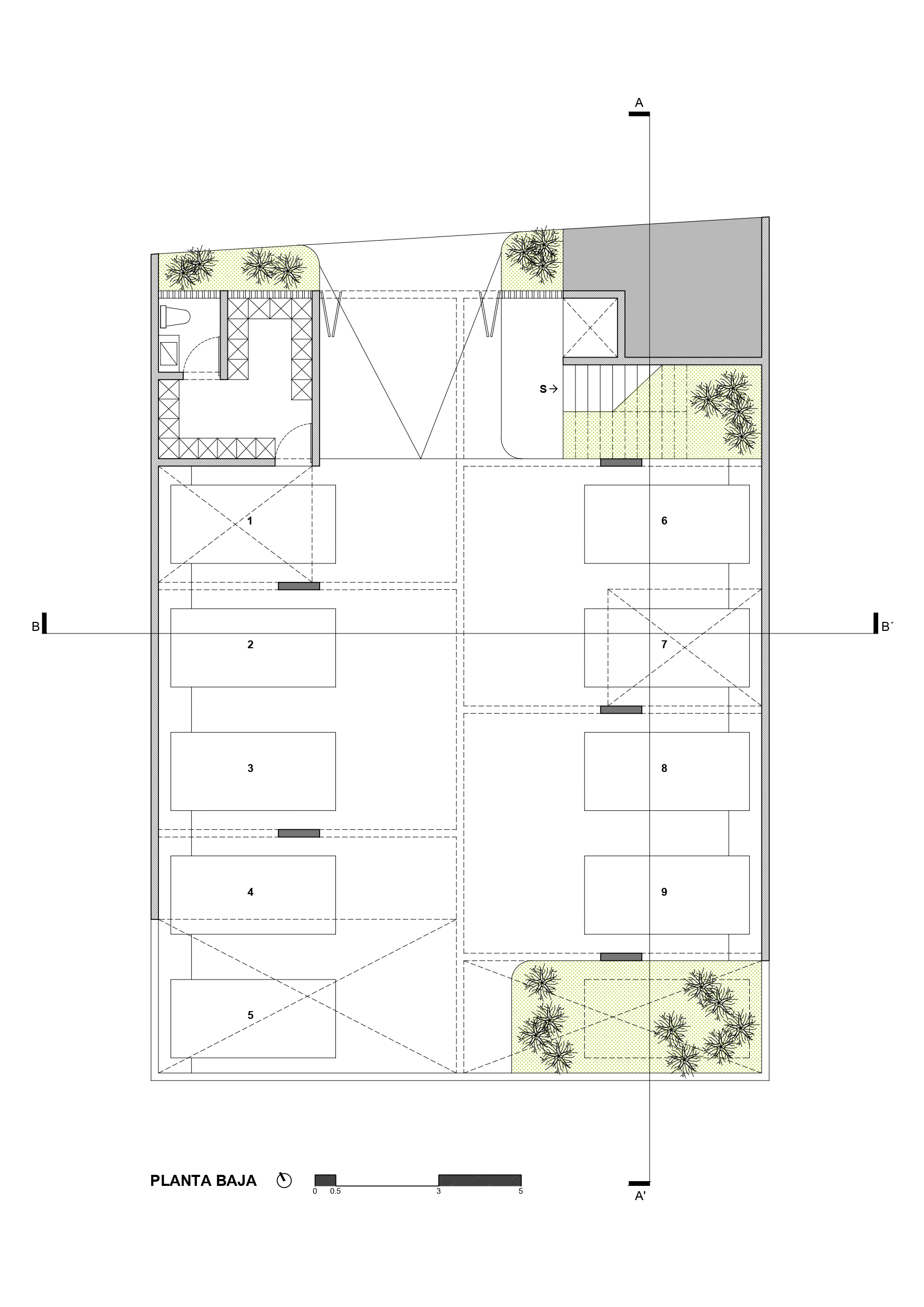
PLANTA BAJA_page-0001
ROOF TOP_page-0001
SECCION LONGITUDINAL_page-0001
  • Location

    Bucerías, Nayarit
  • Year(s)

    2020
  • Project

    Archt. Leon Leroy Zoeger
  • Collaborators

    Archt. Jorge Juan Palomar
  • Surface

    1,312 m²
PREVIO
SIGUIENTE
  • +52 33 33 33 39 29